SNSY53-11D-LLD
Snap-on 53" 頂級十一抽工具系統櫃 (淺灰+淺灰+深灰) YSP 2.0

以系統化思維,打造極致專業空間。
旗艦級工作站配置,讓效率與質感同步進化。
Snap-on® 工具系統櫃,可依實際空間及需求來組合,讓您有彈性的使用空間。
系統工作站,是工業工廠或廠房、汽車原廠、重機原廠、機車維修站設備、自行車保養廠的首選。
#可針對現場客製丈量 #模擬圖設計

我們提供抽屜工具櫃、單/雙開門櫃、回收服務櫃、捲紙櫃、電源/風管櫃、精品櫃及多樣化的模組式設計,與多種尺寸。
結合 Snap-on® 多項專利與技術,訂製符合您工作環境的專業工作站。


![]() |
Snap-on® 系統櫃能協助您整齊有序的收納所有手工具,提升您的專業形象與顧客信任感。 | |
|
|
![]() | ||||
| ⎢ 系統櫃單列資訊 | ||||
![]() ![]() | ||||
| 40" 頂級七抽工具櫃 | ||||
![]() | ||||
| ⎢ 尺寸與顏色 | ||||
| 40" 頂級七抽工具櫃 | ||||
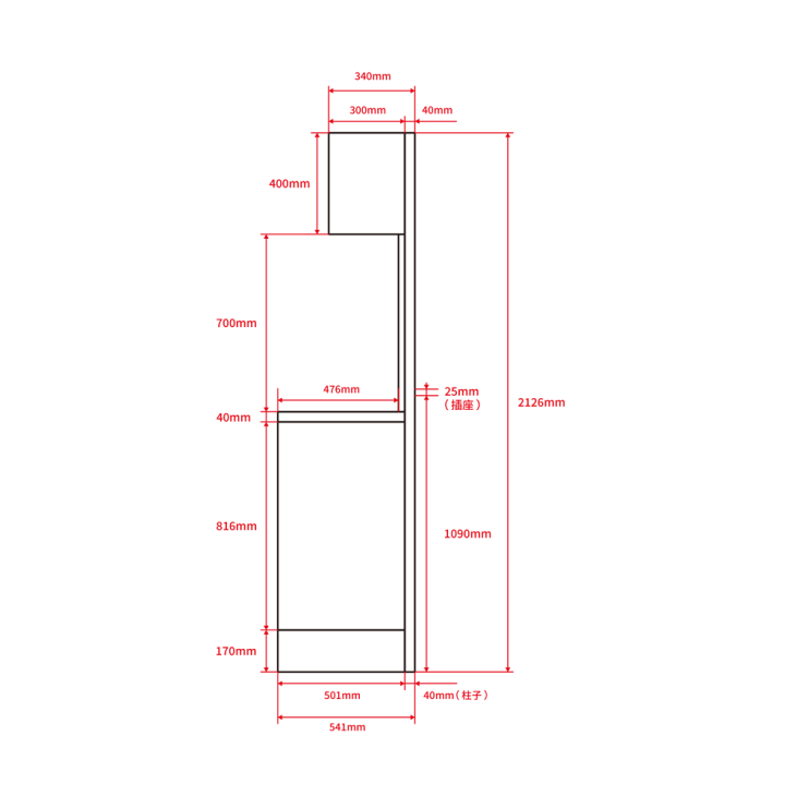
| W 1016 x D 541 x H 2126 mm | ||||
| 上櫃:淺灰 洞洞板:淺灰/方格 下櫃:深灰 | ||||
| 組合時需加裝後方立柱 D = 501 + 40 mm | ||||
![]() | ||||
| ⎢ 櫃體總成 | ||||
![]() | ||||
| 40" 頂級七抽工具櫃 | ||||
![]() | ||||
| 上掀式上櫃 | ||||
![]() | ||||
| 經典方格洞洞板 | ||||
![]() | ||||
| Snap-on® 經典款七抽工具櫃 (附鎖) | ||||
| 抽屜尺寸: | ||||
| W 881 x D 445 x H 41 mm * 2 | ||||
| W 881 x D 445 x H 92 mm * 4 | ||||
| W 881 x D 445 x H 193 mm * 1 | ||||
![]() | ||||
| ⎢ 特點 | ||||
![]() | ||||
![]() | ||||
| 櫃體形象鋁飾牌 | ||||
![]() | ||||
| 含整合式電源供應插座 | ||||
![]() |
| 白鐵工作桌 櫃體含調整腳 粉末靜電塗裝 高強度冷軋鋼板 |